File
Flat for sale in Fuengirola, Málaga
REF. 7658
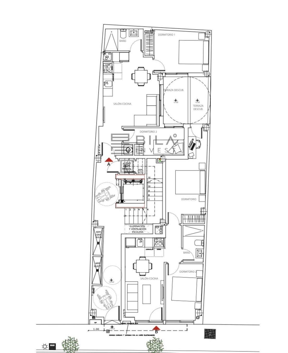
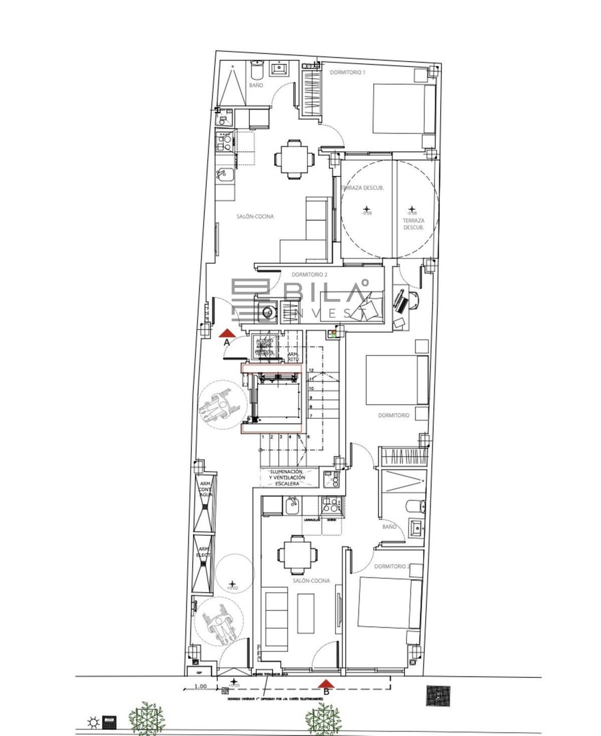
59 m2 2 2
sale: 375,000 €
Description

This is a Resale Unit of a new development. We are pleased to present this ground floor apartment, offering the perfect blend of modern coastal living and convenience. This newly built 2-bedroom, 2-bathroom home is ideally located in the heart of Fuengirola—just 200 meters from the beach.

Designed by renowned architects, the property showcases a sleek, contemporary style with an open-plan layout that seamlessly combines comfort and elegance. The fully fitted kitchen features the latest appliances and flows into a bright living area, creating an inviting space for both relaxation and entertaining.

The apartment is west-facing, ensuring plenty of natural light throughout the day and capturing the warm afternoon and evening sun. A private terrace provides the perfect setting for al fresco dining or enjoying the sea breeze.

Situated in central Fuengirola, this home places you within walking distance of vibrant restaurants, trendy bars, boutique shops, and all the amenities this lively coastal town has to offer.

With completion expected in October–November 2025, this is an exceptional opportunity to secure a stylish ground floor apartment in one of Costa del Sol's most desirable locations. Perfect as a holiday home, permanent residence, or investment property.

Features
Sale Price 375,000 €
Constructed area 59 m2
Bedrooms 2
Bathrooms 2
Furnished Kitchen
Terrace
Condition
Lift
Air conditioning
Electricity
Internet
Efficiency scales



Contact us

If you want more information about this property, please fill in the form:

 Yes, I have read and/or accept the Terms of use and the Privacy Policy
Similar properties:
 
339,500 €
Ref. 7888  66 m2  2  2
Flat for sale in Benalmádena, with 66 m2, 2 rooms and 2 bathrooms, Swimming pool and Garage.
 
315,000 €
Ref. 7882  84 m2  2  2
Flat for sale in Mijas, with 84 m2, 2 rooms and 2 bathrooms, Swimming pool, Garage, Storage room, Lift and Air conditioning.