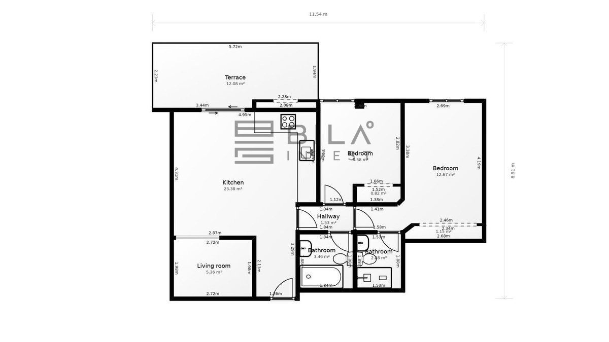
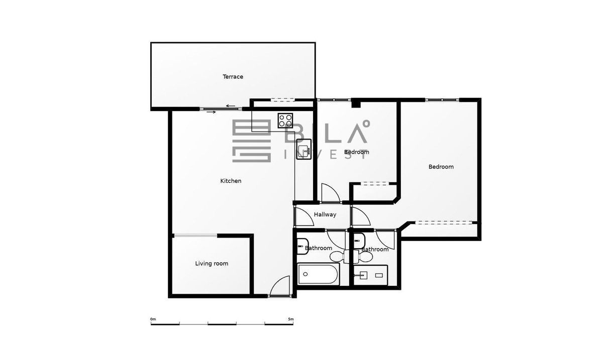
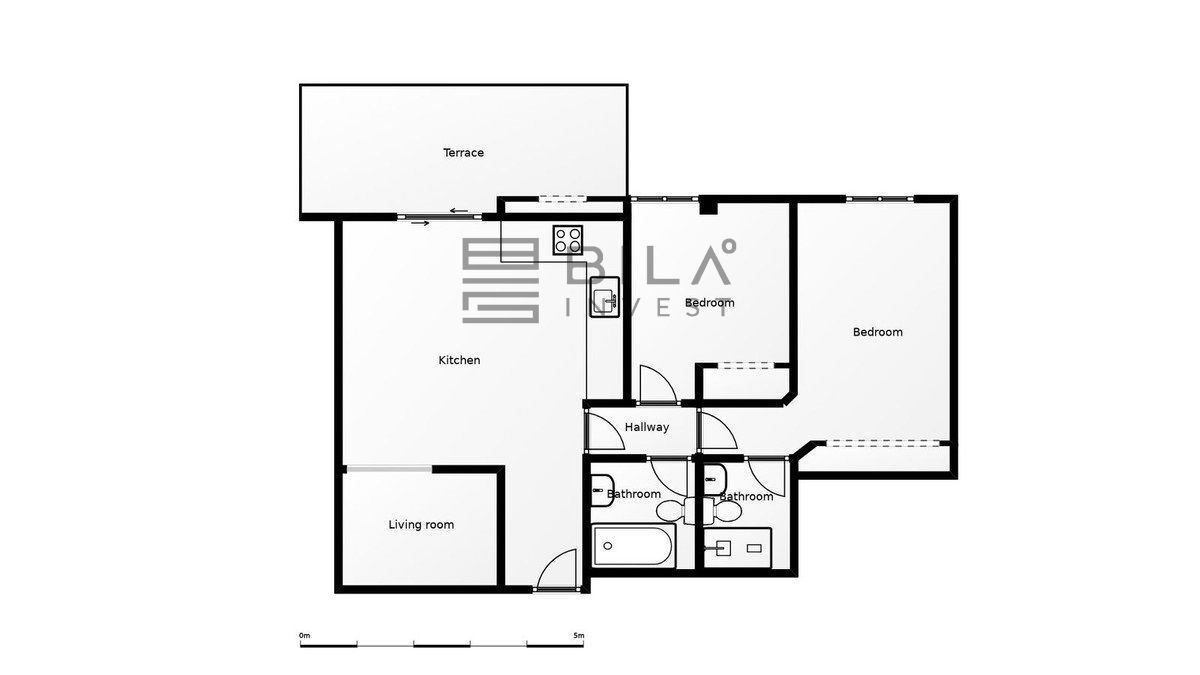
A rare find. Front line beach complex in la Cala de Mijas. 2 bedroom, 2 bathroom, west facing reformed apartment. The apartment has the benefit of an underground garage, store room, tennis and padel courts. Superb holiday home or for permanent living due to its close proximity to all La Cala village has to offer.
Middle Floor Apartment, La Cala, Costa del Sol.
2 Bedrooms, 2 Bathrooms, Built 90 m², Terrace 16 m².
Setting : Beachfront, Village, Close To Golf, Close To Shops, Close To Sea, Close To Schools, Front Line Beach Complex.
Orientation : West.
Condition : Excellent.
Pool : Communal.
Views : Sea.
Features : Covered Terrace, Lift, Fitted Wardrobes, Near Transport, Private Terrace, WiFi, Paddle Tennis, Tennis Court, Storage Room, Ensuite Bathroom, Marble Flooring, Double Glazing, Near Church.
Furniture : Optional.
Kitchen : Fully Fitted.
Garden : Communal.
Security : Gated Complex, Entry Phone.
Parking : Underground, Private.
Utilities : Electricity.
Category : Resale.