Mapa   |     Ficha
Casa en venta en Marbella, Málaga
REF. 10118
230 m2 4 3 1
venta: 1.499.000 €
Descripción

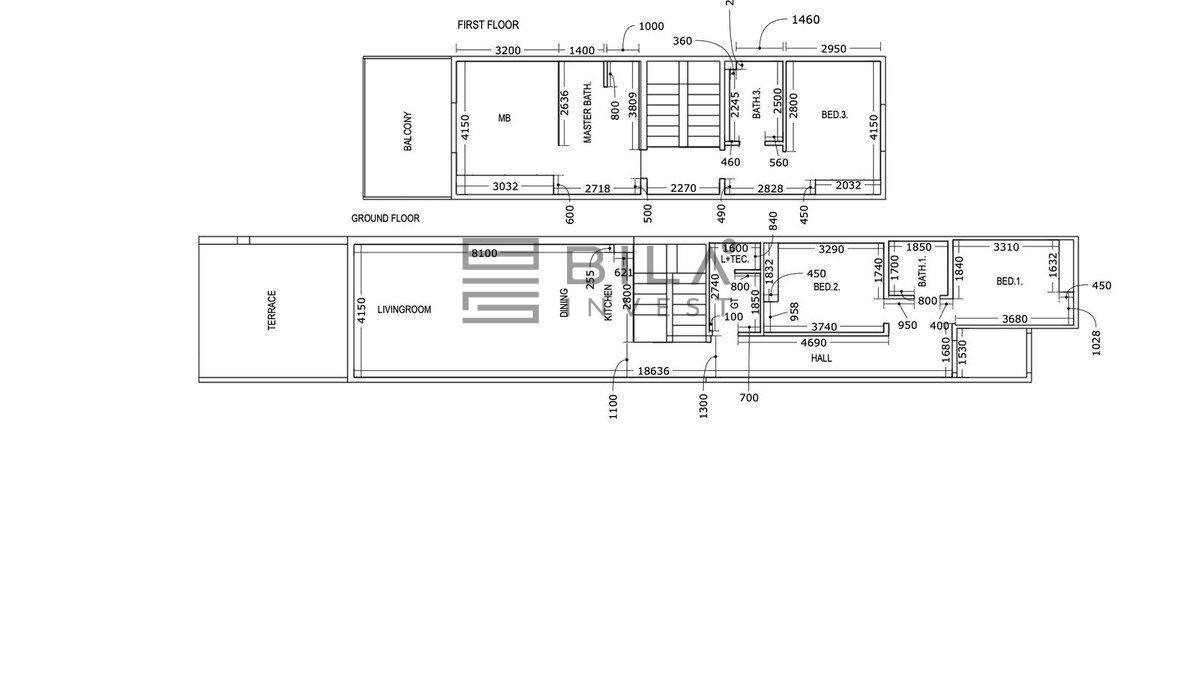
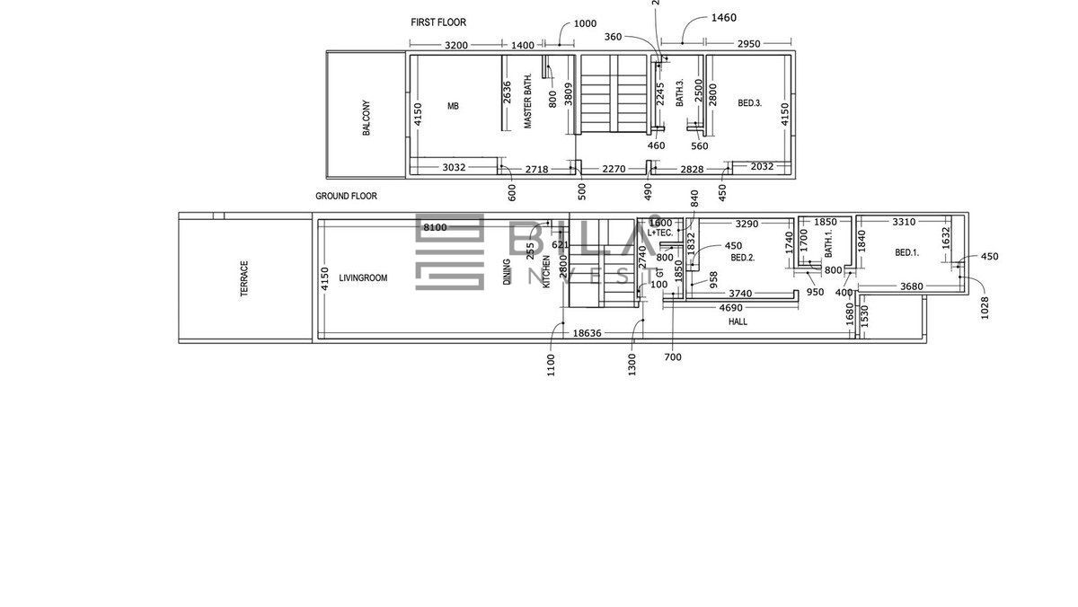
Una casa adosada de cuatro dormitorios bellamente renovada, donde la luz, el espacio y el confort moderno se combinan a la perfección. Situada en la codiciada y familiar comunidad de La Rinconada, en Nueva Andalucía, esta vivienda refleja a la perfección el estilo de vida relajado de Marbella. Rodeada de los verdes campos del famoso Valle del Golf, la propiedad se encuentra en un complejo cerrado de estilo andaluz lleno de encanto.

La comunidad cuenta con jardines maduros con altas palmeras y una tranquila piscina compartida, creando un ambiente apacible y privado. Recientemente renovada de arriba abajo, Casa Preciosa combina materiales de alta calidad con un diseño inteligente y elegante distribuido en dos luminosas plantas. La planta baja ofrece un espacio diáfano con una moderna cocina y un acogedor salón que se abre a una soleada terraza, ideal para disfrutar de comidas al aire libre con vistas al jardín y la piscina, y con acceso directo a las zonas verdes comunitarias.

En esta planta también hay dos dormitorios de invitados que comparten un baño completo, además de un aseo independiente y un lavadero discreto para mayor comodidad. En la planta superior, el dormitorio principal cuenta con su propia terraza con vistas a los jardines, la piscina y las preciosas montañas del Valle del Golf. Otro dormitorio de invitados con baño en suite completa la distribución, asegurando confort y privacidad para todos. Gracias a su excelente orientación, la casa recibe abundante sol de tarde, perfecta para quienes disfrutan del estilo de vida interior-exterior. Se encuentra a pocos pasos de restaurantes de primer nivel, un supermercado, el Aloha Tennis & Paddle Club y el Aloha Golf.

Los prestigiosos campos de golf Las Brisas, Magna y Los Naranjos, así como el Aloha College, están a solo unos minutos. Casa Preciosa ofrece una oportunidad única de adquirir una vivienda elegantemente diseñada en una de las zonas más deseadas de Marbella —una combinación perfecta de estilo, comodidad y ubicación.

NUESTRA AGENCIA ESTÁ REDEFINIENDO LA EXPERIENCIA INMOBILIARIA CON UN COMPROMISO HACIA UN SERVICIO FLUIDO Y CENTRADO EN EL CLIENTE.

Nuestra misión va mucho más allá de las simples transacciones inmobiliarias: ofrecemos un recorrido completo y elevado hacia la propiedad, diseñado para que cada paso sea lo más fácil y libre de estrés posible.

Con nuestro servicio especializado de apoyo para visados, simplificamos la reubicación internacional gestionando de forma experta las complejidades legales y administrativas para usted y su familia. Además, ofrecemos asistencia gratuita con el N.I.E., eliminando obstáculos burocráticos y ahorrándole tiempo valioso.

Entendemos que cada inversión importa. Por eso, nuestro equipo colaborador de asesoramiento hipotecario trabaja incansablemente para conseguir las condiciones más competitivas, adaptadas a su perfil financiero.

Nuestro enfoque es claro y directo: trata directamente con nosotros, sin intermediarios innecesarios. Esto garantiza un proceso de compra transparente y ágil. También proporcionamos asesoramiento jurídico gratuito para proteger su inversión y garantizar que sus intereses estén siempre salvaguardados.

Disfrutará de acceso exclusivo a propiedades premium, representadas por nuestros agentes dedicados con profundo conocimiento del mercado y acceso a oportunidades fuera del mercado. Esto no se trata solo de encontrar una propiedad, sino de crear una experiencia personalizada que se adapte a su estilo de vida y visión a largo plazo.

No solo vendemos propiedades —le ayudamos a construir su futuro, con cuidado, claridad y confianza.

DÉJENOS MOVERLE.

Características
Precio Venta 1.499.000 €
Precio/m² 6.517
Construidos 230 m2
Dormitorios 4
Baños 3
Amueblado
Cocina Amueblada
Terraza
Estado Excelente
Aire acondicionado
Piscina comunitaria
Garaje
Luz
Teléfono
Internet
Alarma interior
Ubicación
La dirección del inmueble es aproximada.
Escalas de eficiencia



Contáctanos

Si deseas más información sobre esta propiedad, por favor, rellena el formulario.

 Sí, he leído y/o acepto las Condiciones de uso y la Política de privacidad
Inmuebles similares:
 
1.495.000 €
Ref. 10837  171 m2  3  4
Casa en venta en Marbella, con 171 m2, 3 habitaciones y 4 baños, Piscina, 2 plazas de Garaje, Trastero, Amueblado y Aire acondicionado.
 
1.204.970 €
Ref. 10151  255 m2  4  3
Casa en venta en Marbella, con 255 m2, 4 habitaciones y 3 baños, Garaje, Trastero y Aire acondicionado.