Mapa   |     Ficha
Dúplex en venta en Mijas, Málaga
REF. 11504
215 m2 4 4
venta: 399.000 €
Descripción

Exclusivo apartamento dúplex: una joya escondida en Mijas Golf

En el corazón de la verde y prestigiosa urbanización Mijas Golf se encuentra este extraordinario dúplex, una vivienda que combina espacio, comodidad y versatilidad de una manera única. Ubicado en una encantadora y exclusiva urbanización privada con solo 14 apartamentos, aquí podrá disfrutar de tranquilidad, privacidad y unas magníficas vistas a la piscina y a los cuidados jardines comunitarios.

Lo que hace que este apartamento sea realmente especial es su inteligente distribución: da la sensación de ser dos viviendas en una. Perfecto para quienes buscan espacio para la familia, invitados o una interesante oportunidad de alquiler.

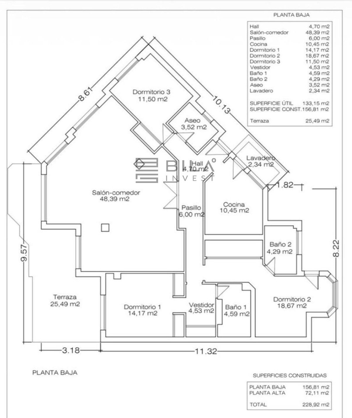
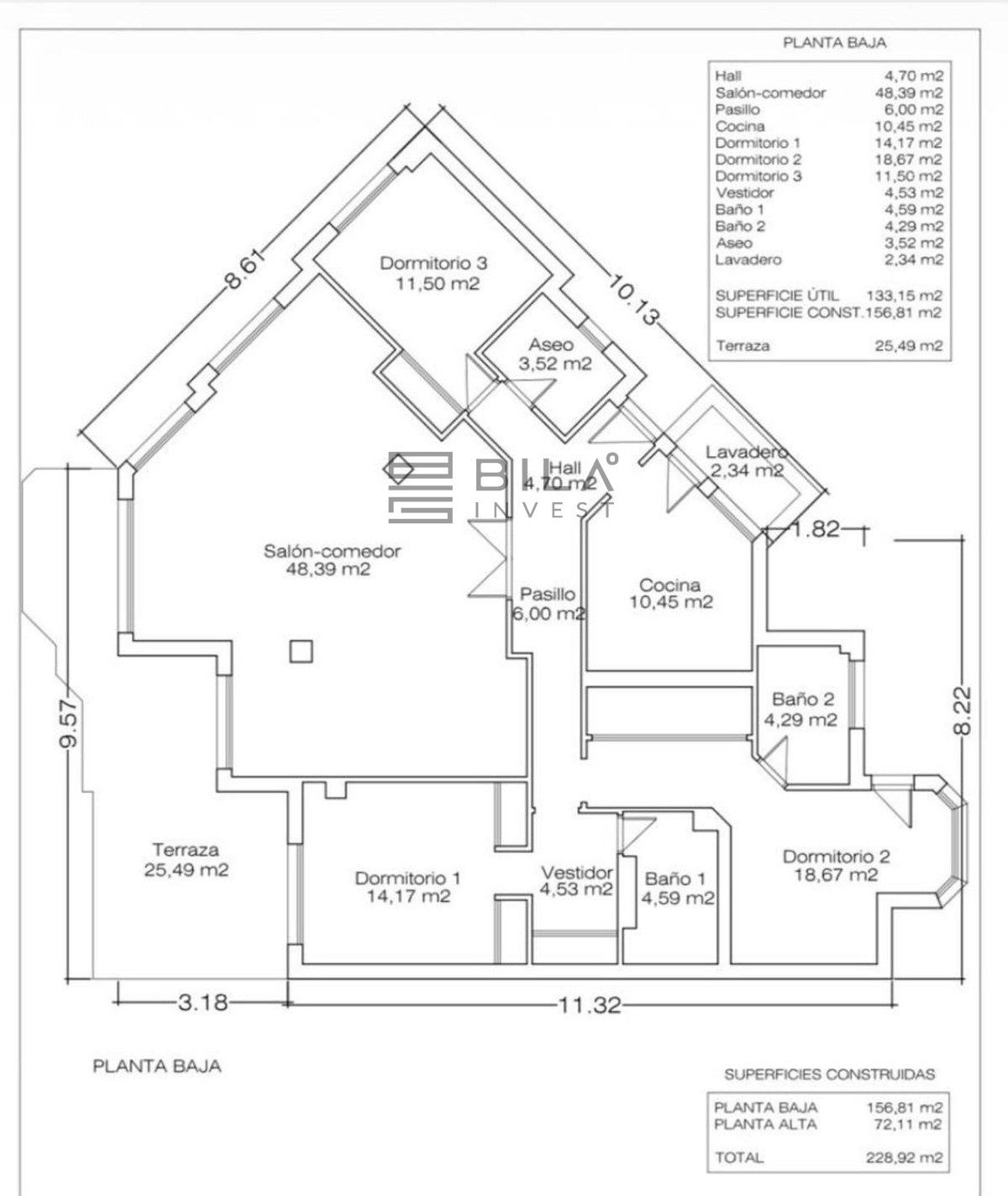
*A) Planta baja – Luz, espacio y ambiente mediterráneo

La vivienda principal le da la bienvenida con un salón-comedor muy amplio y luminoso, donde los grandes ventanales proporcionan una agradable entrada de luz. Desde el salón se accede directamente a la amplia terraza con vistas a la piscina, un lugar maravilloso para disfrutar de las largas tardes mediterráneas.

La cocina independiente y totalmente equipada ofrece todas las comodidades y la funcionalidad necesarias para el uso diario.

En esta planta hay tres cómodos dormitorios, dos de ellos con baño privado, y un baño adicional, lo que garantiza mayor privacidad y comodidad para los residentes y los invitados.

*B) Semisótano – Apartamento independiente

La planta del semisótano está acondicionada como un apartamento totalmente independiente, ideal para:

• invitados o visitas familiares

• alquiler (a largo o corto plazo)

• una oficina privada o un estudio

• una sala de ocio o de aficiones

Esta planta cuenta con:

• 1 dormitorio

• una cocina

• un amplio salón

• 1 cuarto de baño completo, adaptado para personas con movilidad reducida

* pequeno jardin de 6m2

Además, existe la posibilidad de conectar internamente con la vivienda superior mediante una escalera (la abertura aún es visible en el salón), lo que permite, si se desea, volver a unir fácilmente ambos niveles en una única vivienda espaciosa.

*Ubicación privilegiada en Mijas Golf:

Situada en la verde y tranquila zona de Mijas Golf, una popular urbanización de la Costa del Sol, rodeada por los prestigiosos campos de golf Mijas Golf – Los Lagos Course y Mijas Golf – Los Olivos Course.

La zona es conocida por su amplitud, tranquilidad y ambiente internacional. Al mismo tiempo, la animada Fuengirola, con sus playas, restaurantes y todos los servicios, se encuentra a solo unos minutos, mientras que el aeropuerto de Málaga está a unos 25 minutos.

Aquí podrá disfrutar de un entorno residencial relajado con todas las comodidades de la Costa del Sol al alcance de la mano.

*Características principales:

• Apartamento dúplex (planta baja + semisótano)

• Aprox. 251 m² de superficie construida

• 4 dormitorios en total

• 3 baños + 1 aseo

• Posibilidad de dos viviendas independientes o un dúplex conectado

• Amplio y luminoso salón-comedor

• Terraza con vistas a la piscina

• Urbanización exclusiva con solo 14 apartamentos

• Comunidad tranquila, segura y bien cuidada

• Ubicación muy cotizada en Mijas Golf

Una vivienda excepcional que aúna amplitud, flexibilidad y comodidad en uno de los lugares más bellos de la Costa del Sol. Ideal para quienes desean vivir en un espacio amplio, recibir invitados, aprovechar el espacio adicional como inversión con potencial de alquiler o una combinación de todo ello.

Características
Precio Venta 399.000 €
Precio/m² 1.856
Construidos 215 m2
Parcela 5 m2
Dormitorios 4
Baños 4
Cocina Amueblada
Terraza
Estado Regular
Tipo de suelo Mármol
Aire acondicionado
Piscina comunitaria
Caja fuerte
Vigilancia accesos
Ubicación
La dirección del inmueble es aproximada.
Escalas de eficiencia



Contáctanos

Si deseas más información sobre esta propiedad, por favor, rellena el formulario.

 Sí, he leído y/o acepto las Condiciones de uso y la Política de privacidad
Inmuebles similares:
 
399.000 €
Ref. 12026  121 m2  3  3
Dúplex en venta en Mijas, con 121 m2, 3 habitaciones y 3 baños y Piscina.
 
375.000 €
Ref. 11971  99 m2  3  3
Dúplex en venta en Benalmádena, con 99 m2 y 3 habitaciones y 3 baños.